Welcome Homes is excited to present 38 Auchenkist Place – an immaculately presented 4 bedroom town house situated within a most desirable private estate in Kilwinning.
Delivering the ultimate blend of space, style and versatile accommodation, this beautiful home will be perfect for growing families seeking a forever home ready to move right in with no work required.
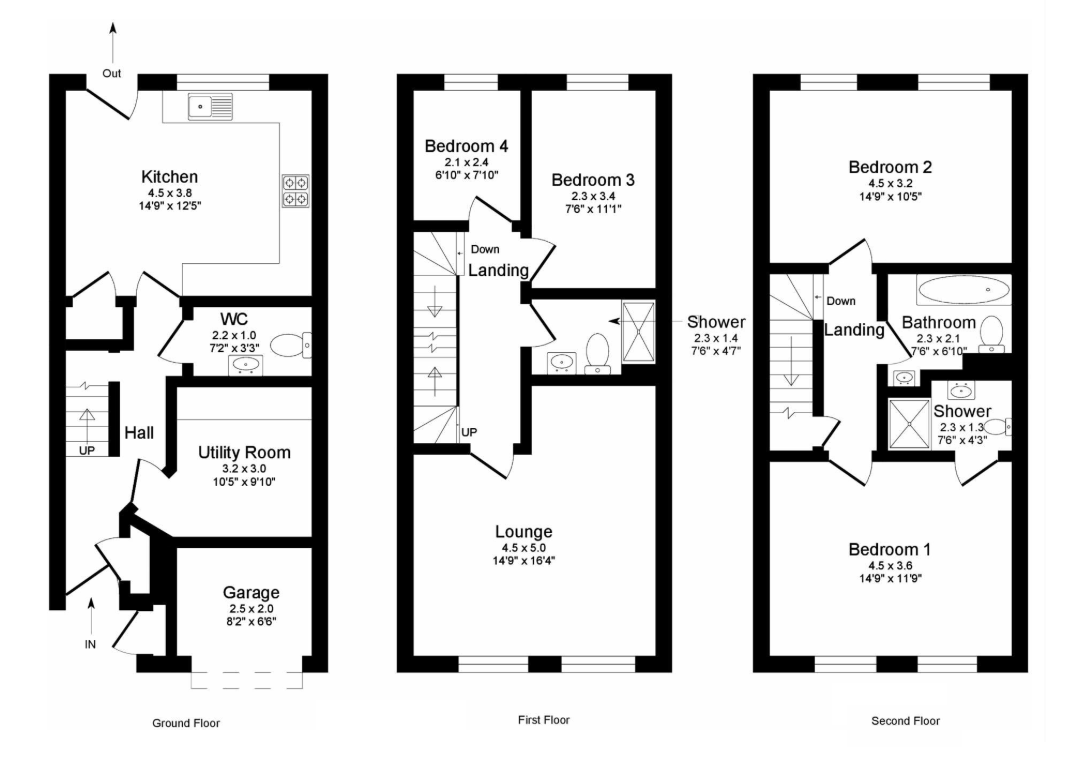
The accommodation set over 3 floors comprises a welcoming entrance hallway, a contemporary dining kitchen with sleek white gloss cabinetry and a generous area for dining and entertaining, a separate plumbed utility room adding extra work space and storage, and a downstairs WC. On the first floor the spacious lounge has 2 windows giving the room a light and airy quality, there are 2 bright bedrooms overlooking the rear and an immaculate family shower room. Proceeding to the second floor the Master Bedroom is a generous double room with an en suite shower room, Bedroom 2 is another beautifully finished double bedroom and completing the accommodation is a family bathroom with a 3 piece suite in white.
Externally at the rear the garden is fully enclosed with modern paving designed for easy maintenance, providing a private outdoor space which enjoys all afternoon sunshine to relax and unwind. The front of the property has a monoblock driveway for 2 cars and an integral garage.
Providing everything a modern family needs for comfort and convenience, this stunning home is sure to impress all who view.
DIMENSIONS:-
Living Room: 5.00 x 4.50 m
Kitchen Diner: 4.50 x 3.80 m
Utility Room: 3.20 x 3.00 m
WC: 2.20 x 1.00 m
Shower Room: 2.30 x 1.40 m
Bedroom 1: 4.50 x 3.60 m
En Suite: 2.30 x 1.30 m
Bedroom 2: 4.50 x 3.20 m
Bedroom 3: 3.40 x 2.30 m
Bedroom 4: 2.40 x 2.10 m
Bathroom: 2.30 x 2.10 m
COUNCIL TAX BAND E
Extras:-
All carpets and fitted flooring; all blinds; all integrated appliances.
Floor Plans
| Name | View |
|---|---|
| View |
Property Features
- 4 Bathrooms
- 4 Bedrooms
- Integral Garage
- Modern Family Home
- Private Garden
- Sought After Location
- Stylish Dining Kitchen
- Utility Room
- Versatile Accommodation
- Walk-in Condition
